產品中心

0769-28683500
136-2261-6665
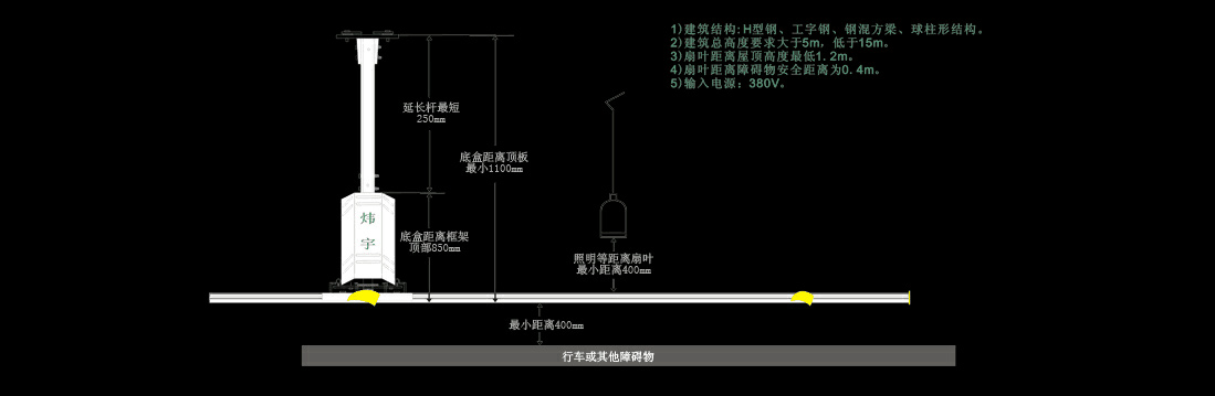
WYDS-C型超大型節能風扇,最大直徑可達7.32米的巨大吊扇!采用空氣動力學原理和先進工藝制造的流線型扇葉,僅需采用1.5KW就可以驅動大量的空氣,產生超大面積的自然微風系統,起到通風和降溫的雙重功能。比起傳統的暖通空調和小型的高速風機,它有無可比擬的應用優勢,堪稱高大空間通風降溫的完美解決方案。WYDS-C型采用6扇葉結構,覆蓋面積可達1200m2.
風扇的動力

流線型扇葉
根據我們設計要求而特制的電機,配上性能優良的減速機就更加增強了風扇的可靠性,低噪音,無振動,壽命長的特點。經過風舟的設計和工程專家的潛心研究,實現了電機,變頻驅動裝置,控制器和風葉長度之間絕紗配合,從而保證了風扇優良的性能,高效率及動平衡。

扇葉是整個風扇的核心技術,風舟風扇廠家,設計出獨特的流線型扇葉,保障了產品效果發揮到極致!扇葉經過特殊光亮氧化技術處理,不易沾染灰塵。免于維護。
電氣控制器

超大型節能風扇全部采用變頻控制系統,內置過載過流保護,遇到意外自動切斷輸出,提升產品安全系數。配備電源穩壓器,滿足不同現場電源要求。您在使用時,就像調整音量一樣方便,只需旋轉調速按鈕,就能滿足不同工況。
風扇的尾翼

經常在飛機和賽車上看到它,但它并不是因為美觀而被開發出來。空氣運動中會在流線形扇葉的末端形成渦流,而安裝了尾冀的風舟風扇消除了這部分能量損失.穩定風扇運轉并帶來效益。
WYDS-C型系列規格參數
型號 ITEM | 電壓 VOL. | 功率 POWER | 直徑 DIA. | 最大轉速 MAX SPEED | 風量 AIR VOLUME | 噪音等級 (DB)A | 葉片數量 FAN NUMBER | 重量 WEIGHT |
|---|---|---|---|---|---|---|---|---|
| WYDS-C730M | 380V | 1.5KW | 7.32M | 50 | 13185/min | ≤45 | 6pcs | 150kg |
| WYDS-C680M | 380V | 1.5KW | 6.72M | 55 | 12862/min | ≤45 | 6pcs | 143kg |
| WYDS-C620M | 380V | 1.5KW | 6.12M | 60 | 12261/min | ≤45 | 6pcs | 135kg |
| WYDS-C560M | 380V | 1.5KW | 5.52M | 65 | 11963/min | ≤45 | 6pcs | 127kg |
| WYDS-C340M | 380V | 0.75KW | 3.42M | 65 | 10260/min | ≤45 | 6pcs | 119kg |
WYDS-C型系列安裝條件

